
Business With Property
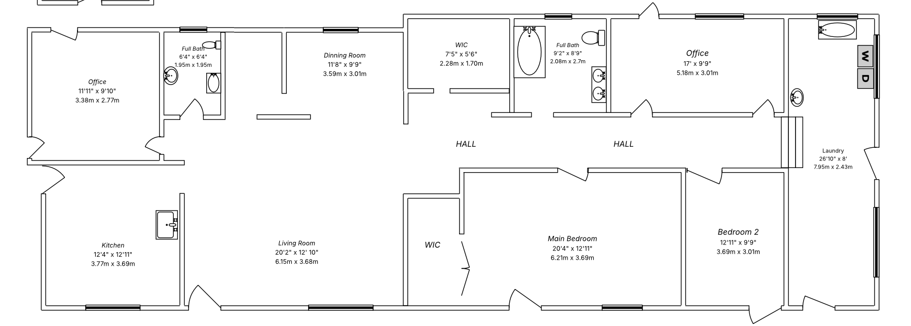
Calling all dog lovers! This turn-key home & business opportunity on 20.56 acres in Georgina is a dream come true. Featuring a well-established dog grooming & boarding business, this profitable venture can help pay for itself while offering a peaceful country lifestyle just an hour from the GTA. The charming 4-bedroom, 2-bath bungalow is thoughtfully designed, with hardwood flooring, a spacious kitchen, and walkouts to outdoor dog runs. A whirlpool tub in the main bath provides a touch of luxury. The property includes 7 dedicated outbuildings for grooming, boarding, and office space, along with high-fenced dog play areas. All that is needed is a kennel license, and the property is already zoned for it. Don’t miss this unique chance to own a home, business, and lifestyle in one!
Photo Gallery
Property Highlights
24 years in operation
Loyal, repeat clientele
7 outbuildings
Grooming, boarding & admin spaces
Employees willing to stay
Seamless transition
Stable revenue & growth potential
Peak seasons boost earnings
No special certification required
Owners willing to train
Rural yet accessible
Close to urban amenities
Video security system with monitors
Driveway Alarm alert system
Location Information
Located in the peaceful and picturesque community of Georgina, 10246 Old Shiloh Road offers an incredible opportunity for business owners seeking a property with both commercial potential and natural charm. Nestled in York Region, Georgina is known for its tranquil rural landscape, welcoming community, and easy access to key amenities. The property benefits from proximity to Highway 48 and Highway 404, providing convenient connections to the Greater Toronto Area (GTA). Surrounded by expansive green spaces, farmland, and local businesses, it offers a serene work environment while remaining accessible to nearby urban centers




































































